CLIENTE
PRINCESS HOTELS
DIRECCIÓN CREATIVA
OLGA PAJARES / ISERN ASSOCIATS
ARQUITECTURA
OSCAR TUSQUETS
ARTISTA
RAMÓN DE LOS HEROS
SUPERFICIE
14.500m2
FOTOGRAFÍA
JORGE DE JORGE JORDÁN
ALICIA GARCÍA
INFOGRAFÍA
RECTORIA 3D
CLIENTE
PRINCESS HOTELS
DIRECCIÓN CREATIVA
OLGA PAJARES / ISERN ASSOCIATS
ARQUITECTURA
OSCAR TUSQUETS
ARTISTA
RAMÓN DE LOS HEROS
SUPERFICIE
14.500m2
FOTOGRAFÍA
JORGE DE JORGE JORDÁN
ALICIA GARCÍA
INFOGRAFÍA
RECTORIA 3D
Reformular el interiorismo del Hotel Barcelona Princess ha sido un reto que asumimos con respeto. El edificio contaba con un proyecto original de Óscar Tusquets, y nuestra intervención busca actualizar sus espacios sin perder su esencia.
Conservando la envolvente arquitectónica original —en tonos naranjas y azules, acero, hormigón y vidrio— decidimos reinterpretar esta paleta como hilo conductor. Cada una de las dos torres del hotel se tiñe de uno de estos colores, que se aplican de forma contundente y sectorial: habitaciones completamente azules o terracota, según la torre en la que se sitúan. El color no solo decora: organiza y da identidad.
Las habitaciones se diseñaron como espacios funcionales pero cálidos, con una distribución abierta y materiales coherentes: melaminas, textiles, papel pintado, baldosa y lavamanos a medida, todo en una misma gama tonal. Algunos elementos del proyecto original se han mantenido y reinterpretado, como la silla Gaulino o la lámpara Tolomeo.
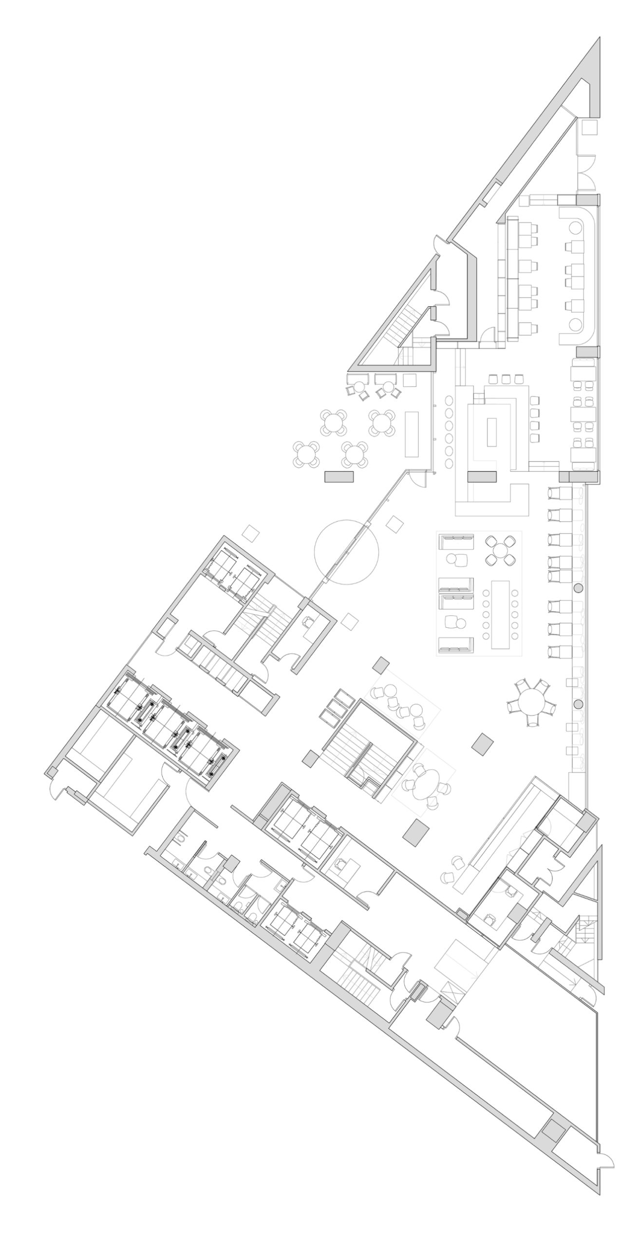
La planta baja, antes compartimentada, se convierte ahora en un espacio abierto, fluido, donde los distintos usos —recepción, vestíbulo, bar y restaurante— se organizan según la sombra cromática proyectada por cada torre. La barra central articula el conjunto, adaptándose a los desniveles del pavimento (parquet y baldosa de terracota artesanal) y ofreciendo distintas maneras de habitar el espacio: trabajar, esperar, reunirse o simplemente pasar.
La recepción, en la zona azul, se diseña con un techo más bajo, materiales nobles y detalles cuidados, mientras que el vestíbulo y el bar, en la zona terracota, se abren a la ciudad con naturalidad. Desde el exterior, todo es visible: el hotel se muestra, se conecta con el barrio, se convierte en parte activa de su entorno.
Reformular el interiorismo del Hotel Barcelona Princess ha sido un reto que asumimos con respeto. El edificio contaba con un proyecto original de Óscar Tusquets, y nuestra intervención busca actualizar sus espacios sin perder su esencia.
Conservando la envolvente arquitectónica original —en tonos naranjas y azules, acero, hormigón y vidrio— decidimos reinterpretar esta paleta como hilo conductor. Cada una de las dos torres del hotel se tiñe de uno de estos colores, que se aplican de forma contundente y sectorial: habitaciones completamente azules o terracota, según la torre en la que se sitúan. El color no solo decora: organiza y da identidad.
Las habitaciones se diseñaron como espacios funcionales pero cálidos, con una distribución abierta y materiales coherentes: melaminas, textiles, papel pintado, baldosa y lavamanos a medida, todo en una misma gama tonal. Algunos elementos del proyecto original se han mantenido y reinterpretado, como la silla Gaulino o la lámpara Tolomeo.
La planta baja, antes compartimentada, se convierte ahora en un espacio abierto, fluido, donde los distintos usos —recepción, vestíbulo, bar y restaurante— se organizan según la sombra cromática proyectada por cada torre. La barra central articula el conjunto, adaptándose a los desniveles del pavimento (parquet y baldosa de terracota artesanal) y ofreciendo distintas maneras de habitar el espacio: trabajar, esperar, reunirse o simplemente pasar.
La recepción, en la zona azul, se diseña con un techo más bajo, materiales nobles y detalles cuidados, mientras que el vestíbulo y el bar, en la zona terracota, se abren a la ciudad con naturalidad. Desde el exterior, todo es visible: el hotel se muestra, se conecta con el barrio, se convierte en parte activa de su entorno.











